クローバーハイツ江戸堀3750万円の物件情報|仲介手数料最大無料リベルタス

クローバーハイツ江戸堀

大阪市中央区 中古マンションクローバーハイツ江戸堀

クローバーハイツ江戸堀の購入|仲介手数料最大無料リベルタス

購入時の仲介手数料
仲介手数料最大無料

ホームページに掲載している物件については、物件ごとに設定されている仲介手数料アイコンをご参照ください。
※仲介手数料アイコンが設定されていない場合は、仲介手数料法定上限額となります。

売却時の仲介手数料
仲介手数料最大半額
仲介手数料
無料
当社買取又は当社指定の仲介手数料無料対象業者による買取の場合
仲介手数料
半額
売買価格5000万円以上の場合
仲介手数料
30%OFF
売買価格2000万円以上5000万円未満の場合※1 ※1 仲介手数料上限額を78万円(税別)とします。
仲介手数料
割引
売買価格1340万円以上2000万円未満の場合※2 ※2 仲介手数料上限額を46.2万円(税別)とします。
詳細については、「リベルタスの仲介手数料」をご参照ください。
〔物件ID〕 0000022242
中古マンション
3,750 万円
所在地 大阪府大阪市西区江之子島1丁目
交通 大阪市営中央線「阿波座」駅 徒歩2分
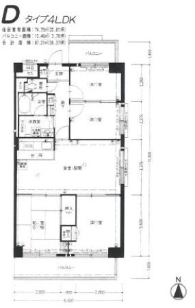
専有面積 74.75m2 (22.61坪)
間取り 4LDK
築年月 1982年11月(昭和57年11月)
所在階/階数 8 階 / --- 階
  • おすすめ物件
  • 高速ネット対応
  • エレベーター
クローバーハイツ江戸堀の物件写真
クローバーハイツ江戸堀のMAP・周辺環境
クローバーハイツ江戸堀の物件概要
所在地 大阪府大阪市西区江之子島1丁目
交通 大阪市営中央線「阿波座」駅 徒歩2分
価格 3,750万円
小学校区---中学校区---
専有面積 74.75m2(22.61坪) 間取り 4LDK
バルコニー面積 --- バルコニー向き ---
その他面積 ---
構造 SRC 所在階/階建 8階/---
築年月 1982年11月(昭和57年11月) 総戸数 103戸
土地権利 所有権 用途地域 商業
管理会社 日本住宅管理株式会社
管理形態 管理会社に全部委託 管理員 ---
管理費 11,210円 修繕積立金 ---
駐車場 --- 駐車場料金 ---
その他使用料 ---
現況 --- 引渡 ---
取引態様 仲介 国土法届出 ---
コメント ---
更新日 2026年01月13日 次回更新予定日 2026年01月27日
ローンシミュレーション
自己資金 万円
※別途、諸費用が必要です。
ローン借入額 万円
内ボーナス時支払い 万円
※ボーナス返済月の加算額ではありません。
※お借入れ予定額の50%以下の金額をご入力ください。
金利
返済年数
  • 月々(毎月返済額)
  • 0
  • ボーナス(ボーナス時加算額)
  • 0

物件情報と現況に差異がある場合、現況を優先します。
掲載物件は売却済み、売却中止、価格変更となる場合がありますので、予めご了承ください。
仲介物件には所定の仲介手数料(消費税含む)が必要です。

会社名 株式会社リベルタス
所在地 〒542-0081
大阪市中央区南船場2丁目6番21号
グラン・ビルド心斎橋3F
交通 大阪市営地下鉄御堂筋線『心斎橋』駅徒歩5分
大阪市営地下鉄長堀鶴見緑地線・堺筋線『長堀橋』駅徒歩3分
TEL 06-6226-8282
FAX 06-6226-8289
ホームページHP https://www.livertas.net/
メールアドレスE-MAIL hello@lvrts.co.jp
免許番号 大阪府知事(2)第59271号
営業時間 AM9:30~PM7:00
定休日 水曜日
物件を探す ×
物件種別
エリア
価格
建物面積
土地面積
専有面積
建築条件
現況
間取り
駅徒歩
築年数
こだわり条件
会員登録で非公開物件をご覧いただけます! 会員登録で非公開物件をご覧いただけます!
会員登録無料

会員登録で物件数が大幅アップ!

公開物件
236
公開物件+
非公開物件
1,134
  • 1会員登録は無料!
  • 2会員専用マイページを作成!
  • 3希望条件に合う新着・価格変更物件をメール配信!
  • 4非公開物件が閲覧可能!
  • 5他社にはない特別限定物件のご紹介チャンスあり!
※購入希望条件に合った非公開物件が閲覧可能です。
※特別限定物件については、担当者にお問い合わせください。